产品名称:带支架入墙式水箱(配挂便器)
产品材质:不锈钢+塑料
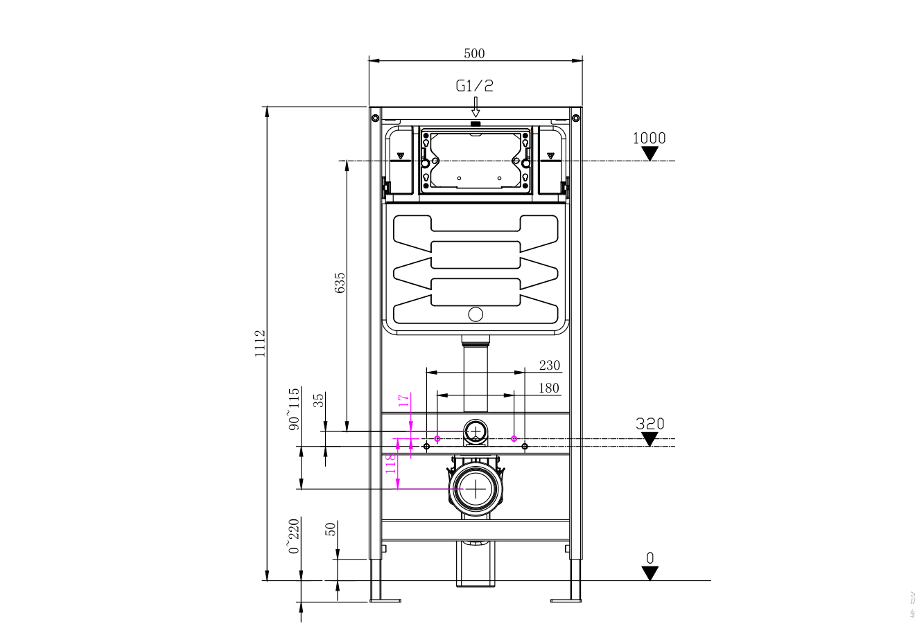
产品规格:500x1112x(155-260)mm
产品型号:JS0891Q
*尺寸信息仅供参考,具体以实物为准
1、节省空间,360°清洁2、超低噪音3、水箱一次成型,杜绝破裂4、冲力强劲5、伸缩脚高度可调节6、优选铜角阀7、安装方便
资料下载:
Product recommendations