卡伦C 61081-70
卡伦C 61081-70
产品参数
产品卖点

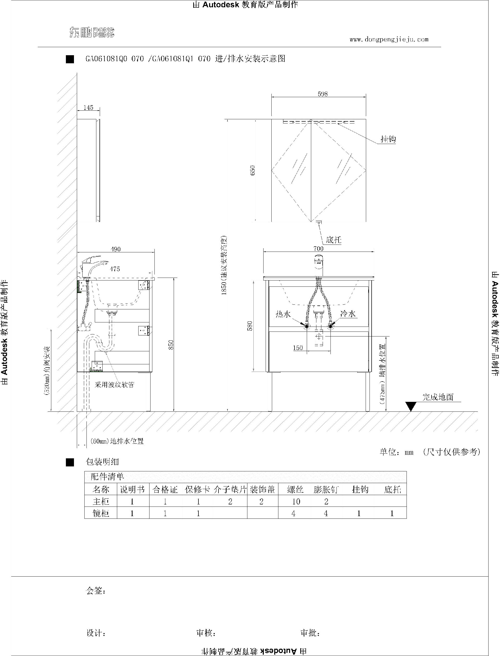
    产品尺寸:700x490x1850mm

    产品颜色:苹果蓝+深空灰

    产品材质:铝蜂窝

    主柜    GA061081B0_067  670x475x830mm(含柜脚)

    镜柜    GA015092C0_060  600x145x650mm

    陶瓷盆 W31130510X         700x490x225mm

    产品型号:GA061081Q0_070


产品推荐

Product recommendations