产品颜色:湖蓝+哑黑色+黑白根
产品材质:多层实木+岩板
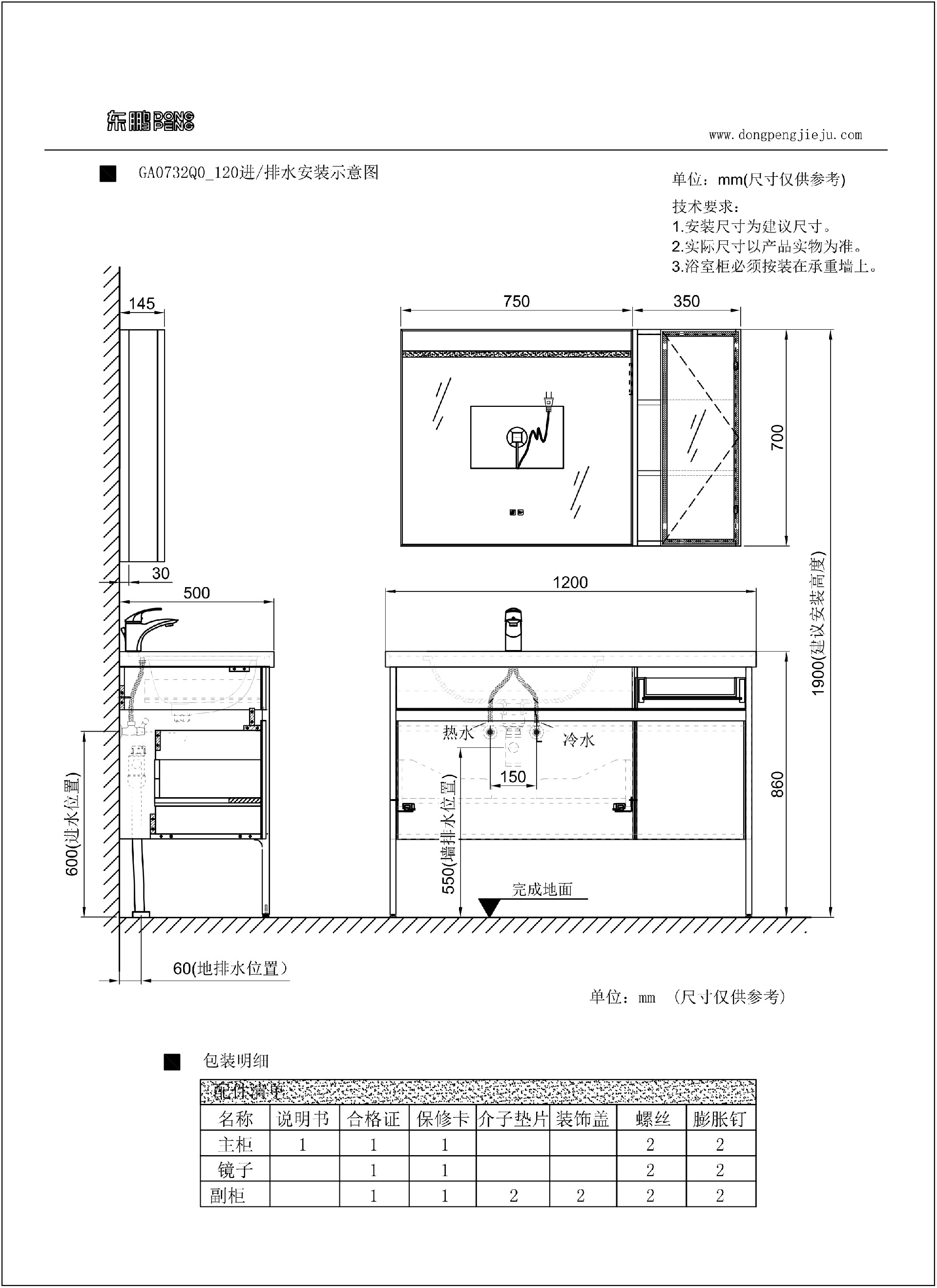
产品尺寸:1190x495x1900mm
主柜 GA0732B0_117 1170x485x800mm(含柜脚)
镜子 GA0732M0_075 750x30x700mm
副柜 GA0732S0_035 350x145x700mm
台面+台下盆 GA0732T0_120 1190x495x205mm
产品型号:GA0732Q0_120
1、现代轻奢风格;
2、轻智能金属框镜:双触摸感应开关 ,单色正白光LED灯光,除雾功能
3、黑白根加厚岩板台面:健康、易清洁、耐刮磨;
4、带灯魔力抽屉,灯效感应启闭;
5、人性收纳:主柜大/小抽屉分格收纳+柜门置物,侧柜分层置物;
6、陶瓷盆:晶银釉面,银离子长效抗菌;