产品颜色:砖红+深空灰+刚果灰
产品材质:铝蜂窝+玻璃+岩板
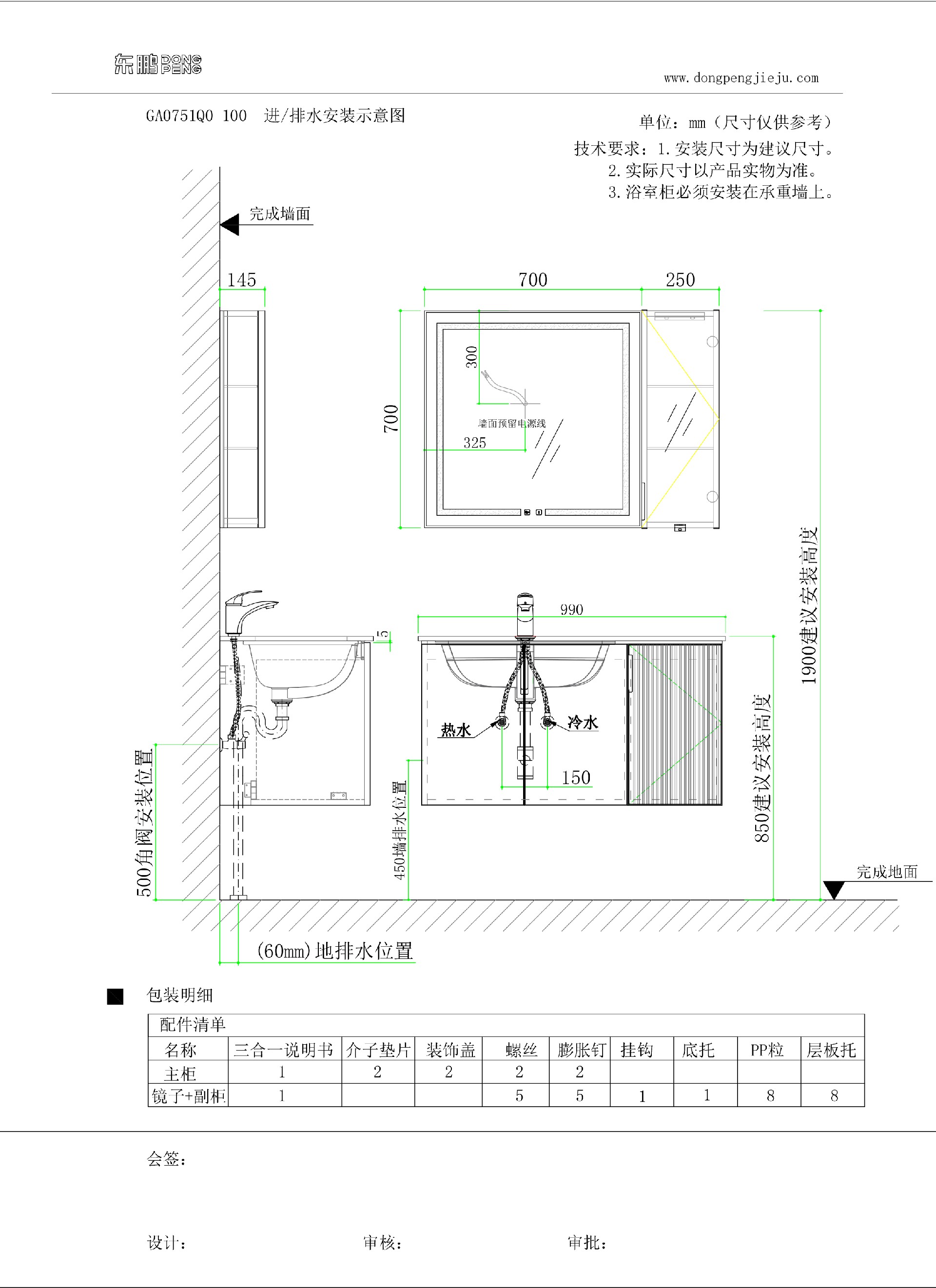
产品尺寸:990x495x1900mm
主柜 GA0751B0_097 970x485x530mm
镜子 GA0751M0_070 700x35x700mm
副柜 GA0751S0_025 250x145x700mm
岩板+台下盆 GA0751T0_100 990x495x205mm
产品型号:GA0751Q0_100
1、现代极简风格;
2、轻智能金属框镜,双键无极调光触摸开关,单色白光LED灯光,除雾功能
3、岩板台面:健康、易清洁、耐刮磨;
4、环保铝蜂窝板:防水易洁、防开裂,耐老化;
5、多彩防爆玻璃:肤感细腻,防水 ,耐老化;
6、陶瓷盆:晶银釉面,银离子长效抗菌。