墨容1271Q0-80
墨容1271Q0-80
产品参数
产品卖点

    产品颜色:鱼水情深

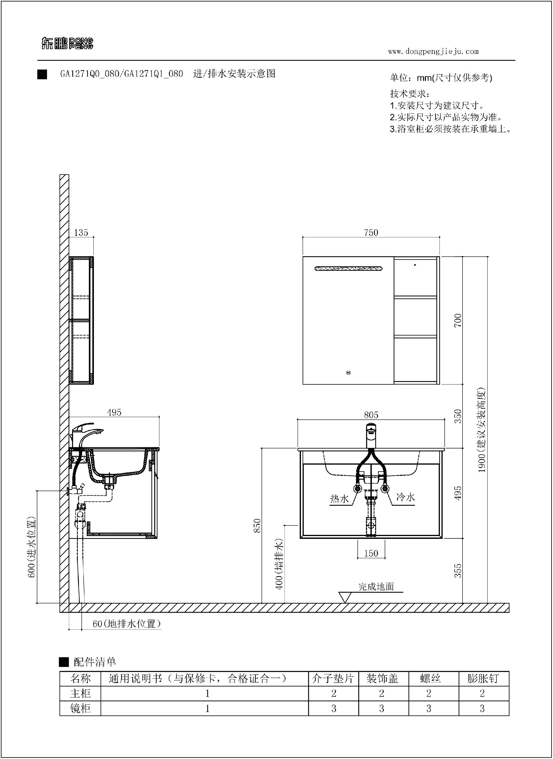
    产品尺寸:805X495X1900mm

    产品材质:生态实木

    主柜+盆:GA1271Z2_078   805X495X480mm

    镜柜:GA1271C0_075  750X135X700mm

    产品型号:GA1271Q0_080


产品推荐

Product recommendations