皓森1631Q0-80
皓森1631Q0-80
产品参数
产品卖点

    产品颜色:可可棕几何菱形免漆板+圆弧可可棕同色油漆

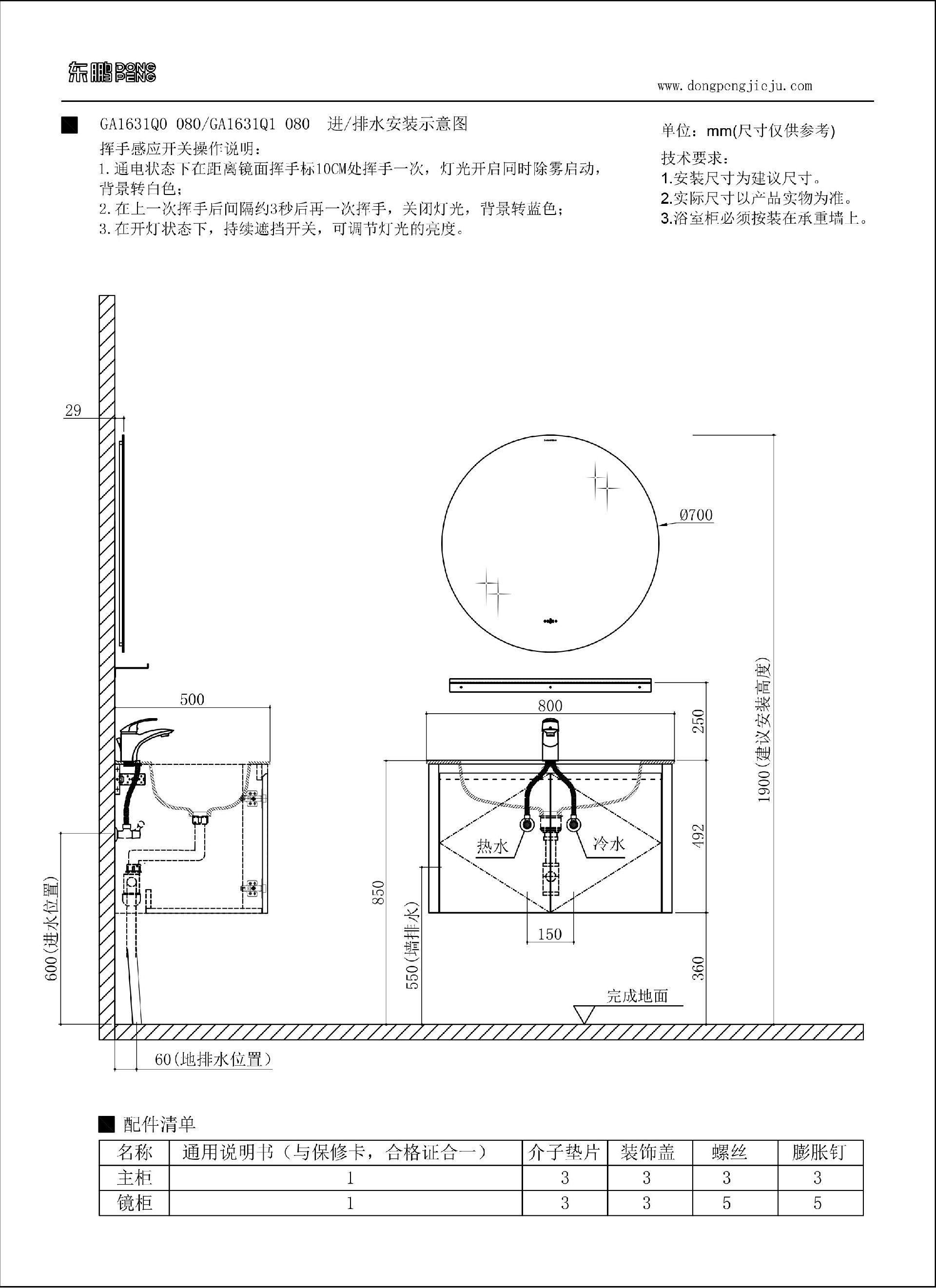
    产品尺寸:800x500x1900mm

    产品材质:生态实木+多层实木

    主柜:GA1631B0_078 784x492x480mm

    镜子:GA1631M0_070 700x30x700mm

    肤感人造石一体盆:D11305Q 800x500x178mm

    产品型号:GA1631Q0_080


产品推荐

Product recommendations