航天1544Q0-70
航天1544Q0-70
产品参数
产品卖点

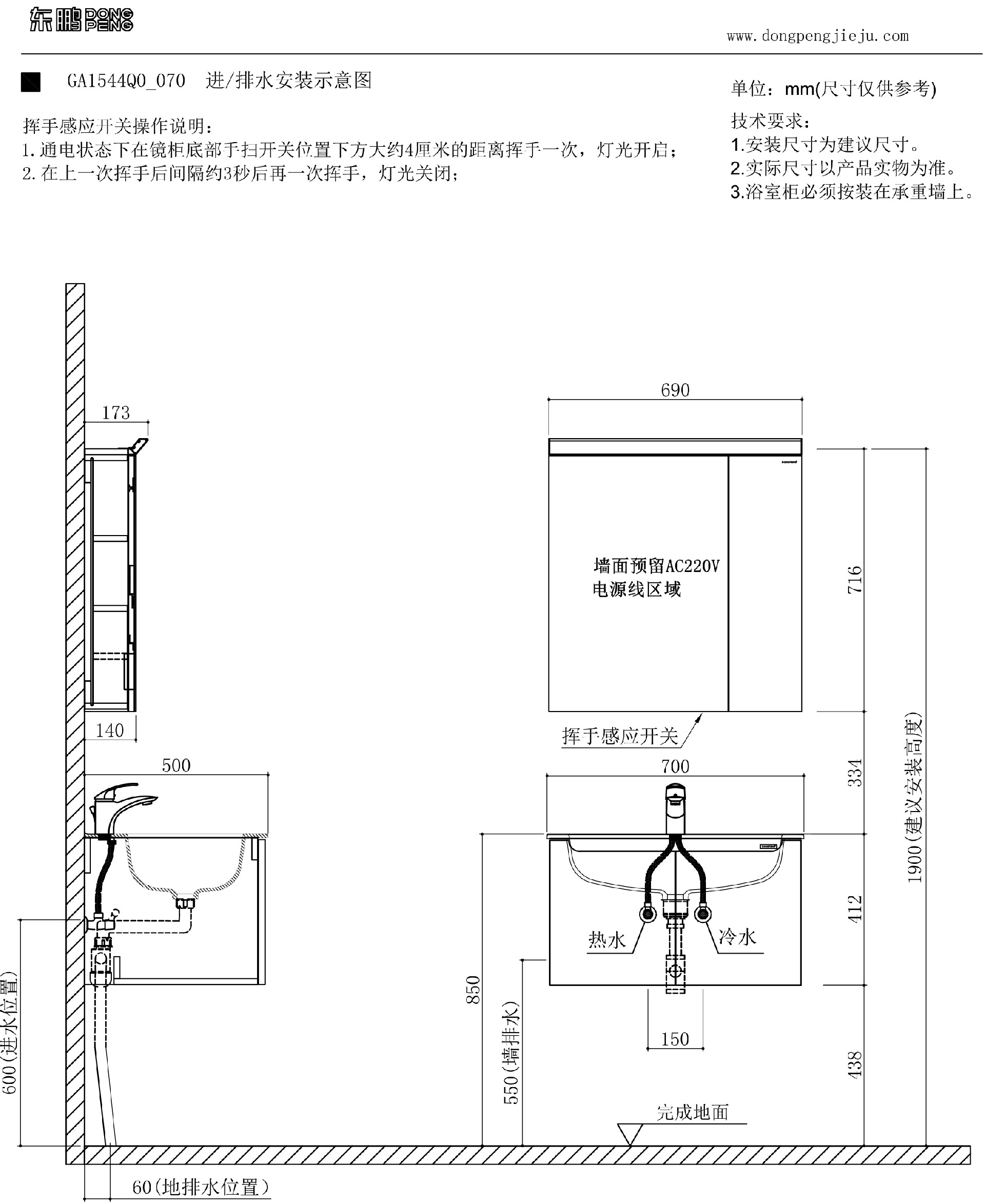
    产品型号:GA1544Q0_070

    产品尺寸:700×500×1900mm

    产品颜色:燕麦灰+卡其灰

    产品材质:多层实木

    主柜: GA1544B0_068  684×492×480mm

    镜柜: GA1544C0_069  690×173×742mm

    肤感人造石一体盆:D09705Q  700×500×177mm



产品推荐

Product recommendations