午后巴黎2281-80
午后巴黎2281-80
产品参数
产品卖点

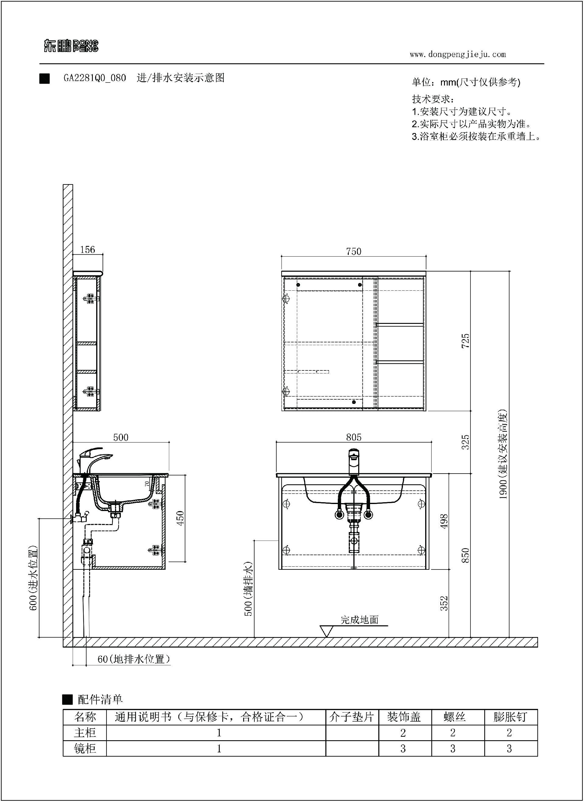
    产品型号:GA2281Q0_080

    产品颜色:奶油白+杏灰

    产品材质:多层实木

    产品尺寸:805x495x1900mm

    主柜 GA2281Z0_080 

    805x495x500mm

    镜柜 GA2281C0_075 

    750x155x700mm

    一体陶瓷盆 W3103A0510X

    805x495x195mm


产品推荐

Product recommendations