卡罗娜2321-100
卡罗娜2321-100
产品参数
产品卖点

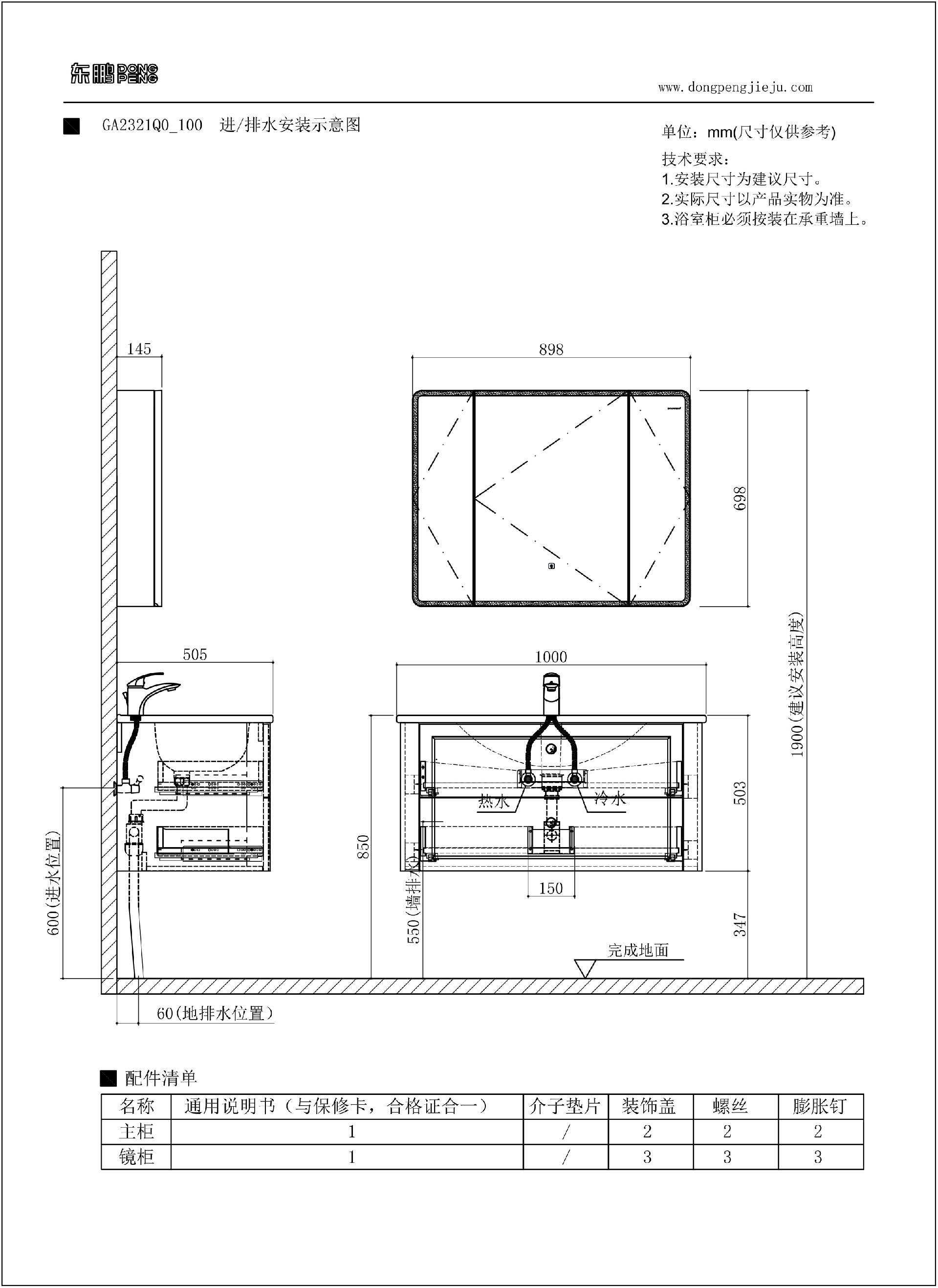
    产品型号:GA2321Q0_100

    产品颜色:浅灰蓝

    产品材质:多层实木+生态实木

    产品尺寸:1000x505x1900mm 

    主柜 GA2321Z0_100 1000x505x508mm

    镜柜 GA2321C0_095 898x145x698mm

    一体陶瓷盆 D22805Q 1000x505x200mm



产品推荐

Product recommendations