浮光2341-100
浮光2341-100
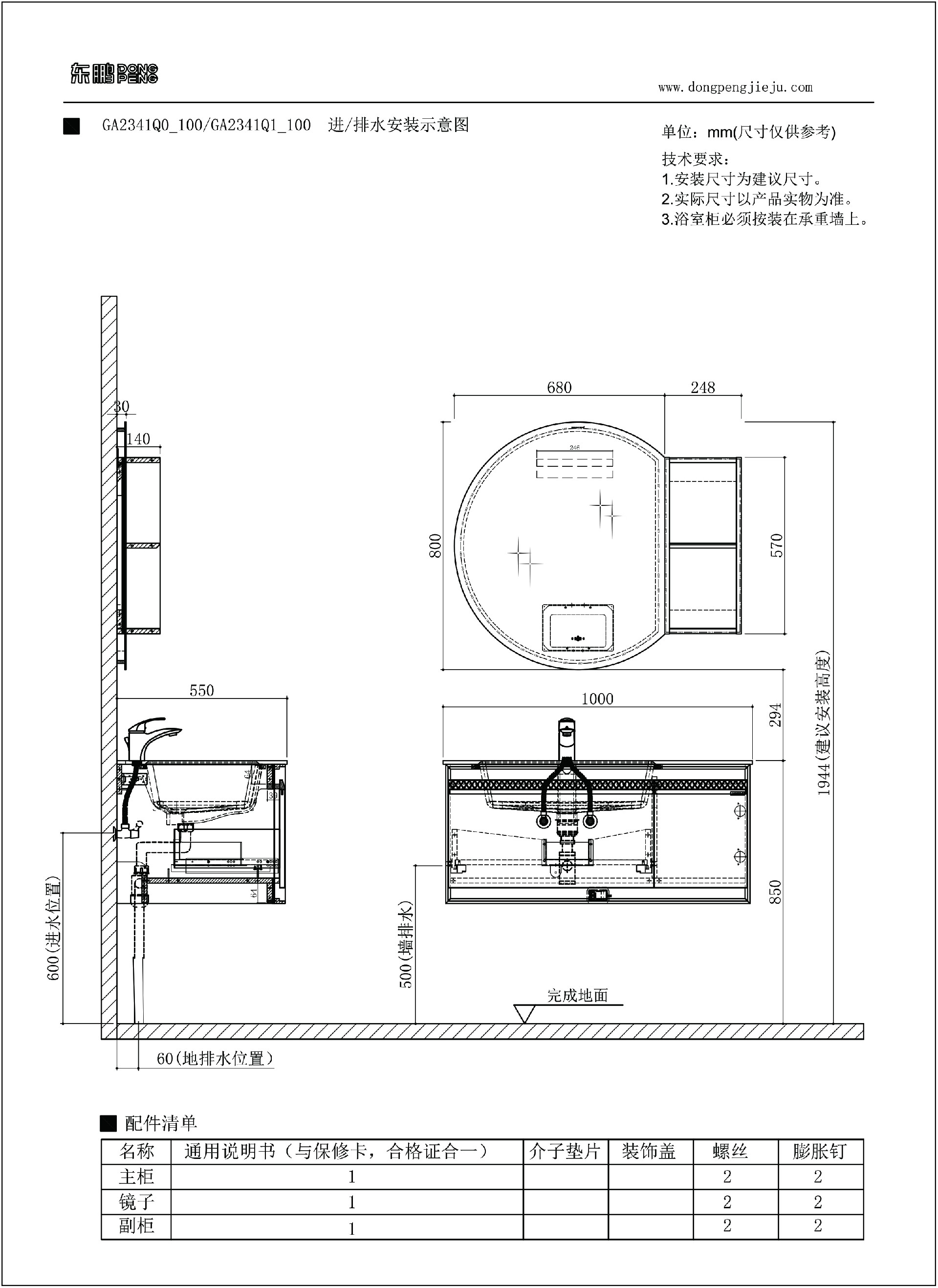
产品参数
产品卖点

    产品型号:GA2341Q1_100

    产品颜色:胡桃棕+罗马印记

    产品材质:多层实木+生态实木+岩板

    产品尺寸:1000x550x1900mm

    主柜 GA2341B0_098

    984x544x450mm

    侧柜 GA2341S0_025

    250x140x570mm

    镜子 GA2341M0_068

    680x30x800mm

    岩板无缝一体盆 GA2341T1_100 1000x550x210mm


产品推荐

Product recommendations